Reforma vivienda piso en calle San Miguel, S/C Tenerife


Brainstorming para la reforma de un piso en planta baja en el centro de S/C de Tenerife. La reforma gira en torno a dos núcleos diferenciados, el nuevo salón/cocina en un espacio único y el nuevo patio interior que articula el espacio privativo de descanso y la zona de reuniones.
En proceso (septiembre 2023).



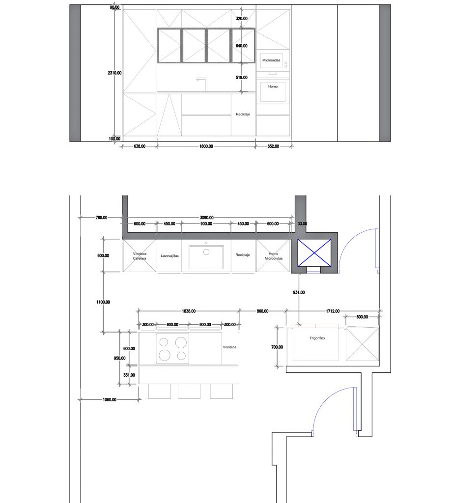
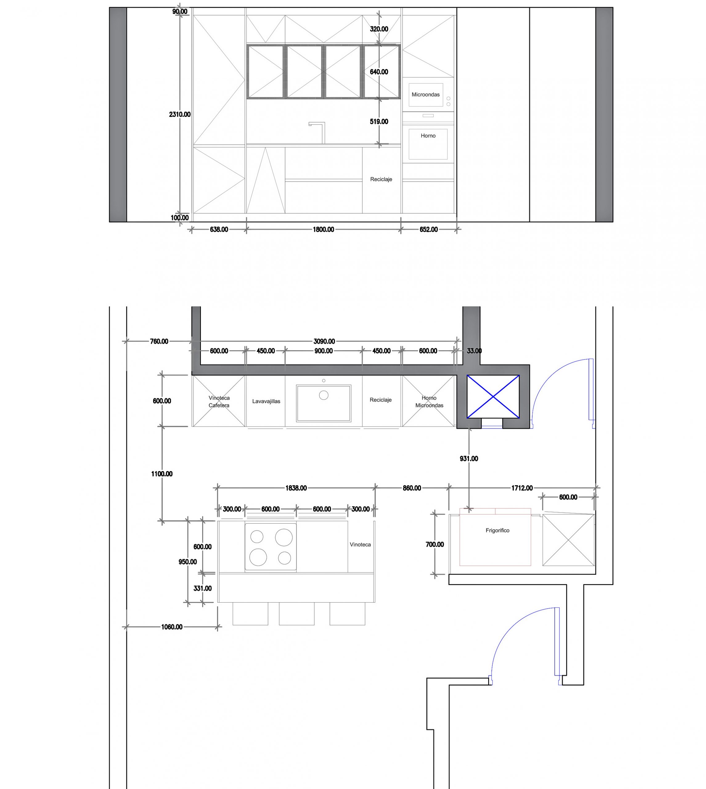
Se adjuntan infografías y planos de la futura zona de cocina integrada.

Fotografía de la reforma final de la cocina integrada (febrero 2024).

